Archaeology Museum
Istanbul Historical Artifacts Showcase
Target Group
Local and international tourists
Year
2024
Location
Yedikule, Istanbul

Introduction
A cultural and exhibition center designed to showcase Istanbul's vast collection of historical artifacts, with over 700,000 pieces currently stored away.
Located in a historically rich area overlooking the city's ancient walls and Yedikule, this center goes beyond a traditional museum. It offers an immersive experience with 3D animation rooms, interactive exhibitions, and a conference hall for cultural events.
The architectural design respects the historical context while introducing contemporary elements that enhance the visitor experience. The building's form creates a dialogue with the ancient city walls, framing views and creating a visual connection to Istanbul's past.
culturalExhibitionIntro4
Concept
We began by stretching the volume to align seamlessly with the historical walls, both respecting and enhancing their presence. Next, we carved out a prominent entrance, strategically positioned to remain visible from behind the historical walls, inviting and guiding visitors. Finally, we rotated the building's western section to frame and emphasize the site's most significant historical views.
Concept Development



Located near Yedikule and the historic walls of Istanbul, the site was once home to centuries-old gardens, recognized by UNESCO as a World Heritage site since 1985. Over time, these historic market gardens were lost and the area turned into an unstructured green and sandy landscape. To revive this forgotten heritage, the project introduces three thematic gardens representing the Byzantine, Greek, and Ottoman eras. Each garden features plants and flowers characteristic of its time, allowing visitors to sense the deep connection between nature and history as they walk through these spaces.
Massing Studies


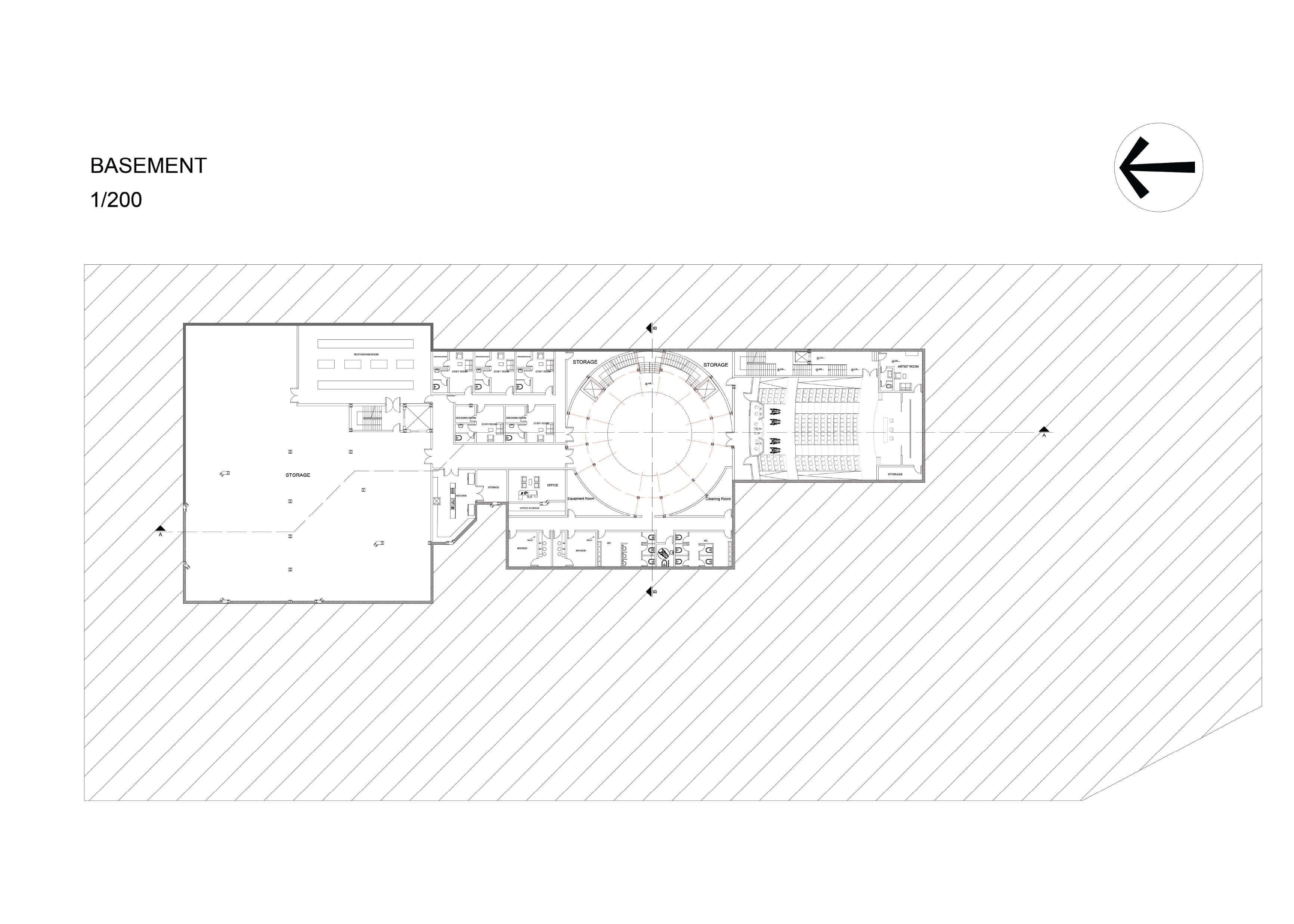
Floor Plans




Elevations & Sections


Exploded Diagram

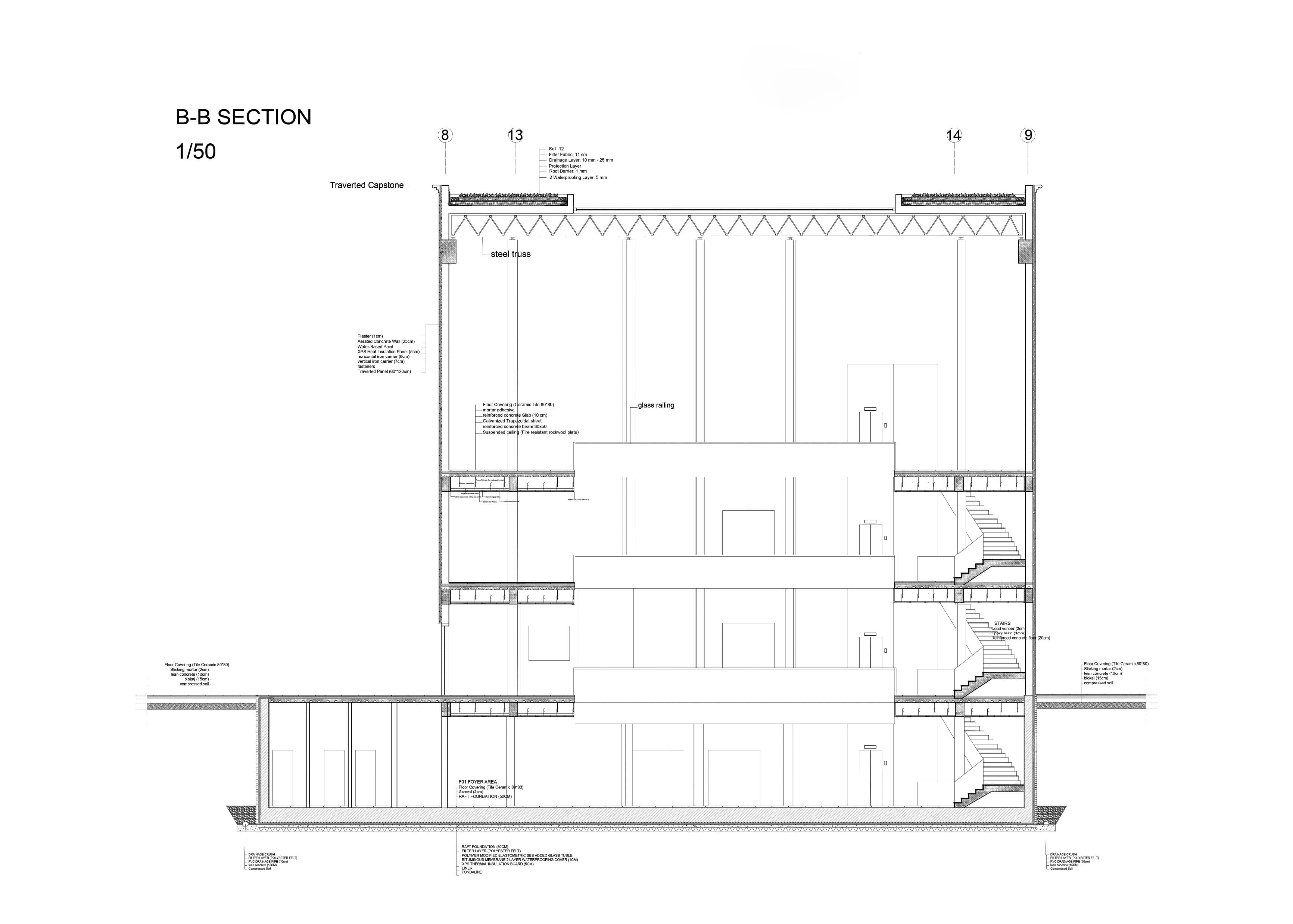
Section Details 1/50

3D Renderings




Building Program
- 3D Animation Room
- Conference Hall
- Storage
- Restoration Laboratory
- Temporary Exhibition Center
- Artifacts Exhibition Areas
- Administration
- Restaurant and Café
- Shop


