Fikirtepe Social Housing
Social Housing Project
Target Group
Fikirtepe elderly population
Year
2026
Location
Fikirtepe, Istanbul

Introduction
Fikirtepe is one of Istanbul's important residential areas that has long preserved its old neighborhood texture and strong community culture. Balcony culture, the close relationship between housing and the ground level, neighborhood coffee houses, and strong ties among neighbors are among the main elements that shape the social identity of this area. This social housing project aims to preserve Fikirtepe's rich cultural heritage and reinterpret it through a safer, more organized, and more clearly defined spatial language.
During the design process, spaces that support spontaneous encounters, strong neighborhood relationships, and everyday social interaction were brought to the forefront in order to keep community life alive. Balcony culture was especially preserved in the project; the solid-void balance created by the balconies on the façade not only produces aesthetic value, but also strengthens the visual and living relationship between the building and the neighborhood.
The bridges, transition spaces, and terraces established between the masses added both spatial richness and new layers that increase social interaction. These elements were designed as spaces that encourage people to come together, strengthen neighborhood relations, and create a shared living experience. In addition, through the semi-open spaces created at different points of the project, a strong relationship was established between interior and exterior spaces, and the continuity of neighborhood life was supported at the architectural scale.
Concept Sketch

This conceptual sketch reflects Fikirtepe's neighborhood culture and social relationships, showing stronger visual connections, increased encounters, and the effective use of sunlight under different climate conditions.
Mass Development Diagram

Sliding Shutter Concept

The movable sliding shutter system added to the corridors running along the façade and connecting the independent units gives the façade a rhythmic and dynamic character. At the same time, these openable and closable elements regulate the entry of sunlight into the interior in a controlled way, supporting both climatic comfort and spatial flexibility.
Diagram

Site Plans
Site Plan 1/1000

Site Plan 1/200

Typology Matrix

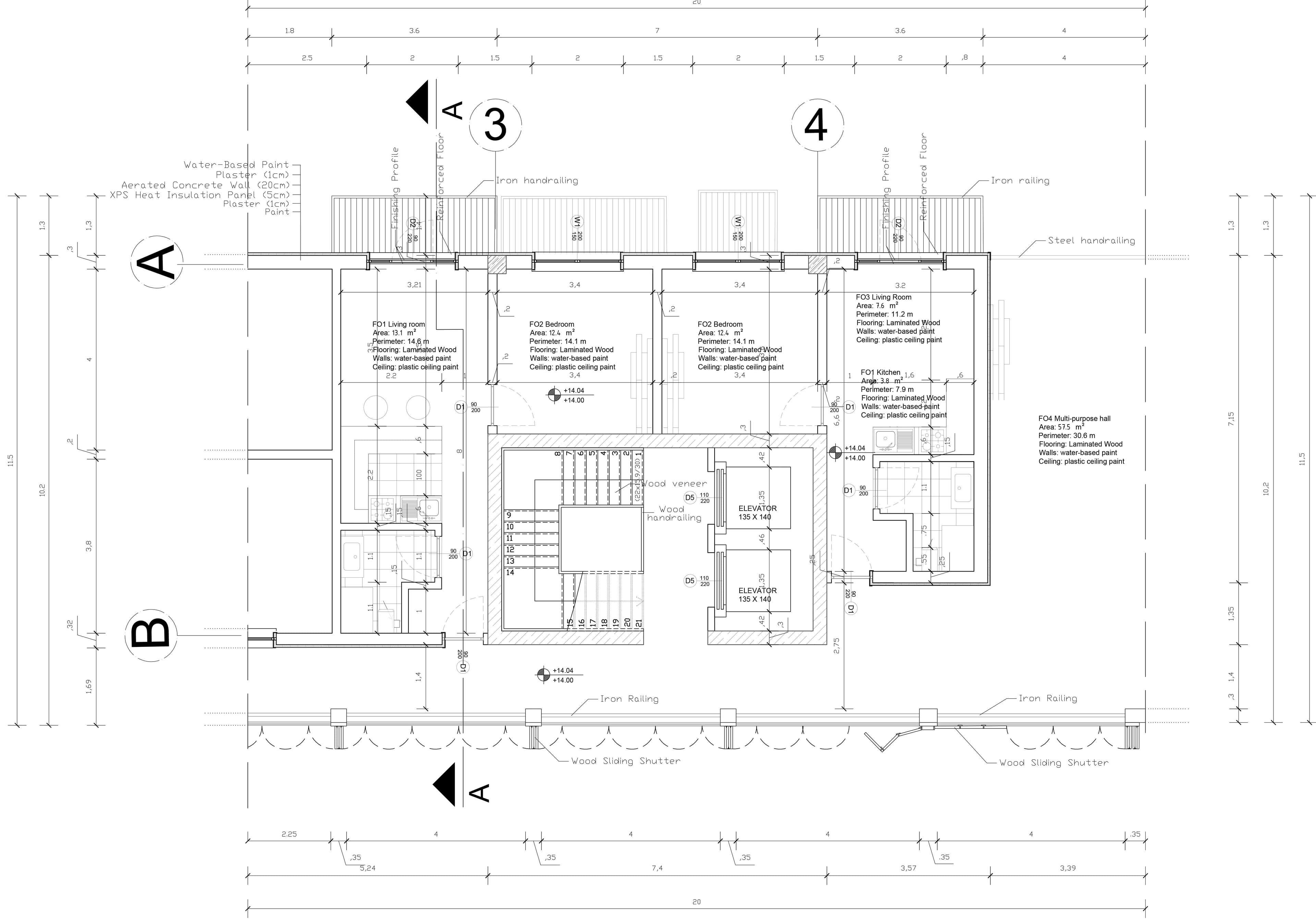
Plans
+20.00 Level Plan

+24.50 Level Plan

+28.00 Level Plan

+31.50 Level Plan

+35.00 Level Plan

+38.50 Level Plan

+42.00 Level Plan

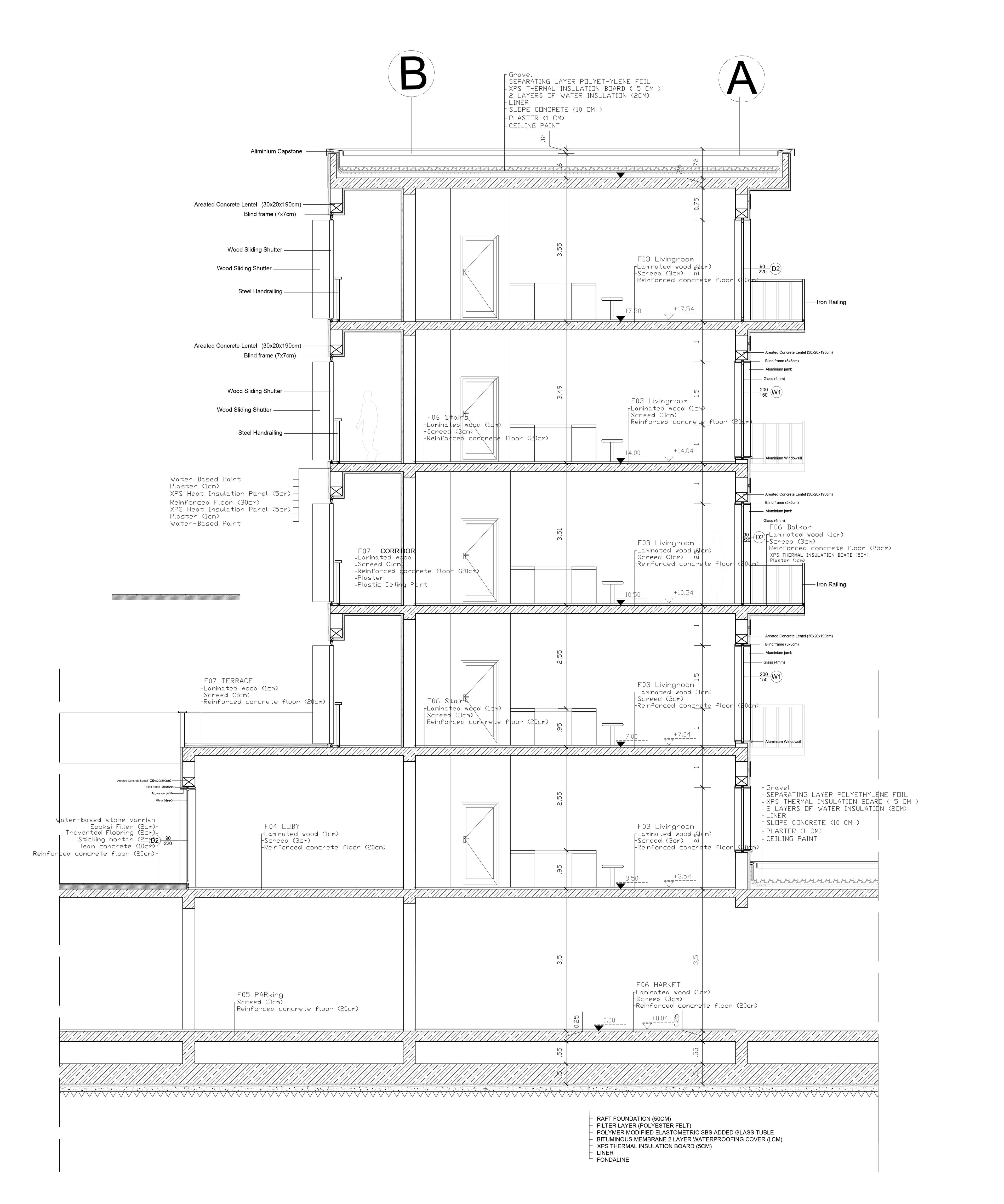
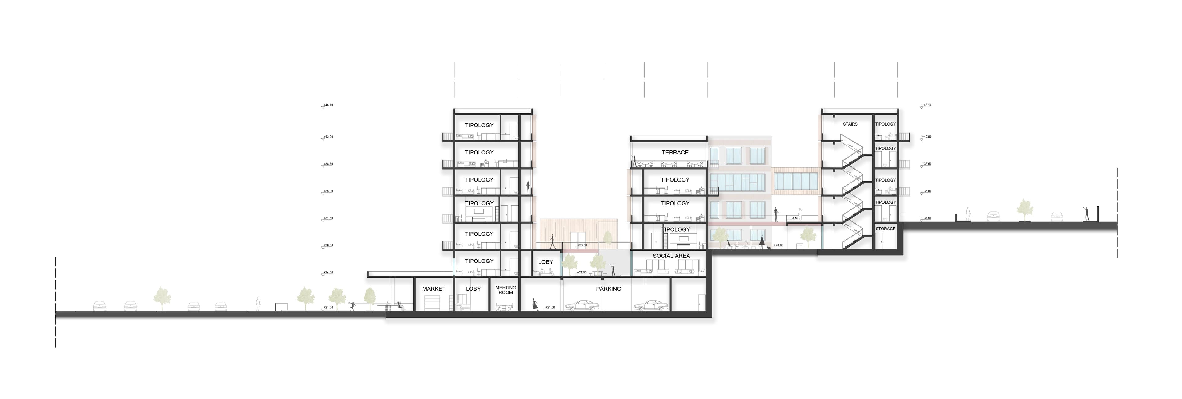
Sections
Section A-A

Section B-B

Elevations


1/50 Drawing Detail


3D Visuals











