Language Center
Etiler District Educational Facility
Target Group
Etiler young population
Year
2024
Location
Etiler, Istanbul

Introduction
A language center designed in Etiler, a district known for its affluent community and a significant number of young residents studying abroad.
This language center is designed to provide a dynamic learning environment that fosters multilingual education and cultural exchange. Recognizing the area's international outlook, the facility caters to the needs of students preparing for international education.
The architectural approach emphasizes open, collaborative spaces that encourage interaction between students of different languages and cultures. The design incorporates flexible classrooms that can be reconfigured for various teaching methodologies and group sizes.
Concept
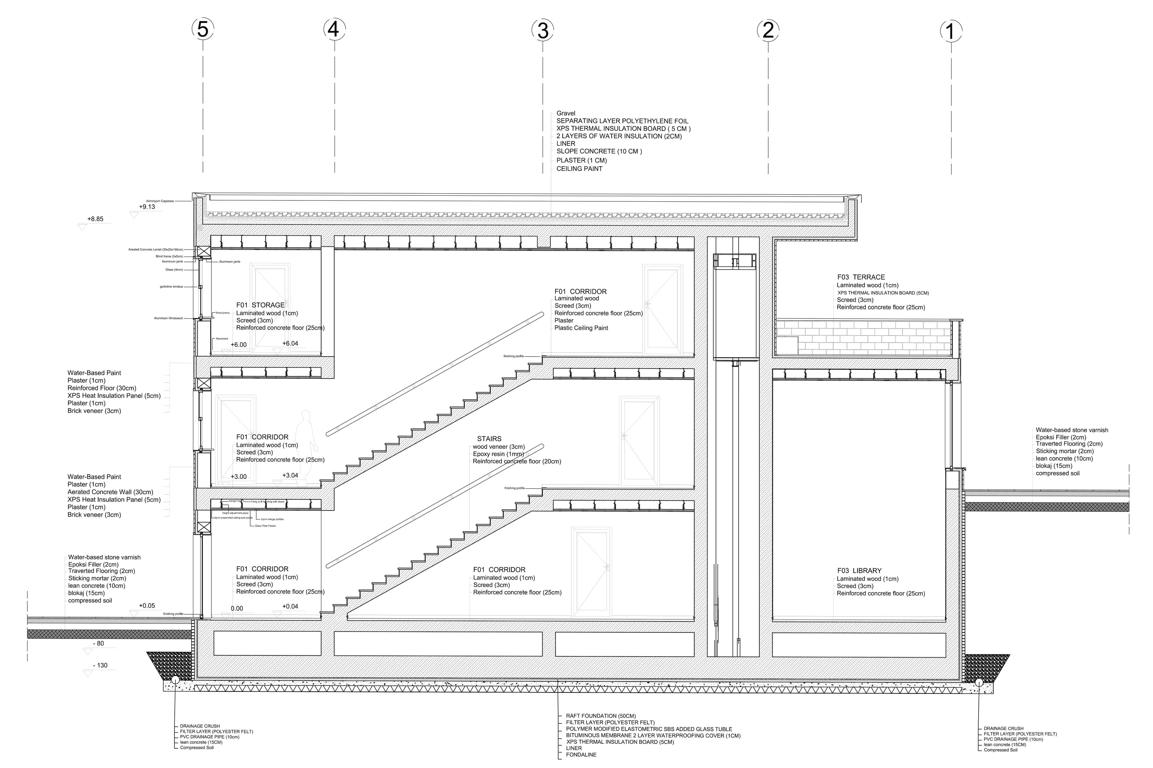
The project was designed to adapt to the site's sloped topography. To provide students with larger spaces and opportunities for interaction, a terrace and a garden were created. Eaves were added to the roof and garden areas to provide protection and enhance the aesthetic quality.
Concept Diagrams


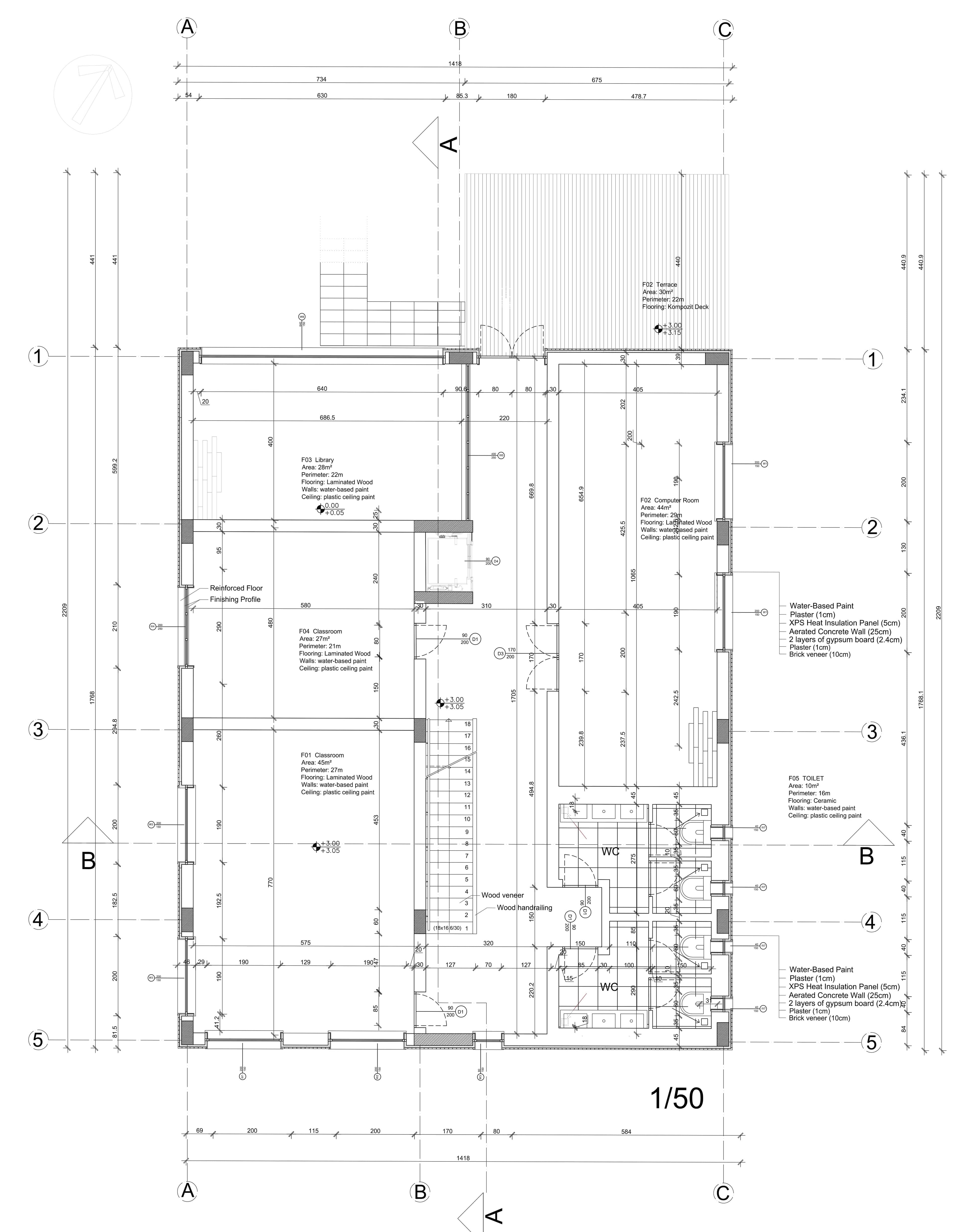
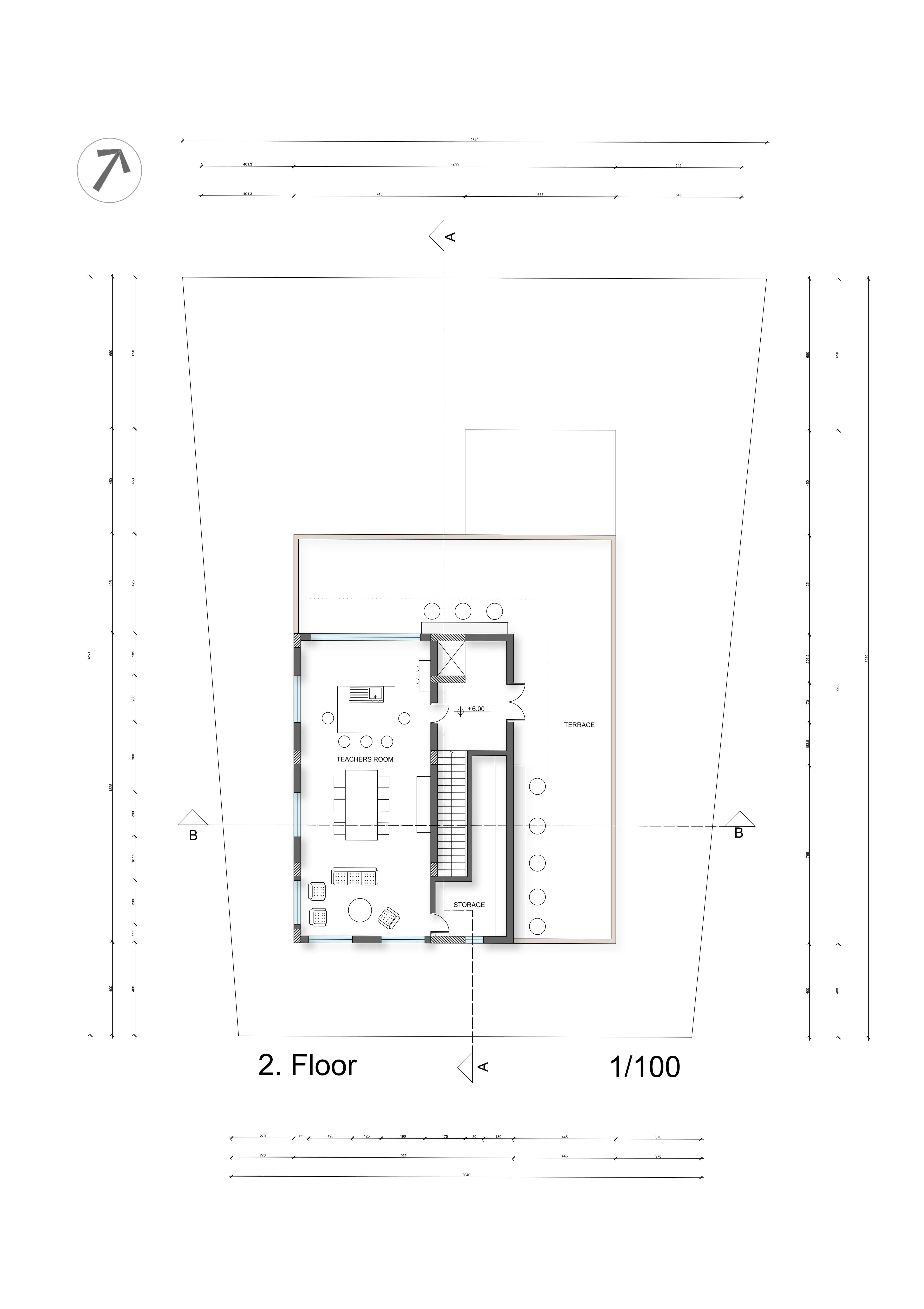
Floor Plans



First Floor Plan 1/50

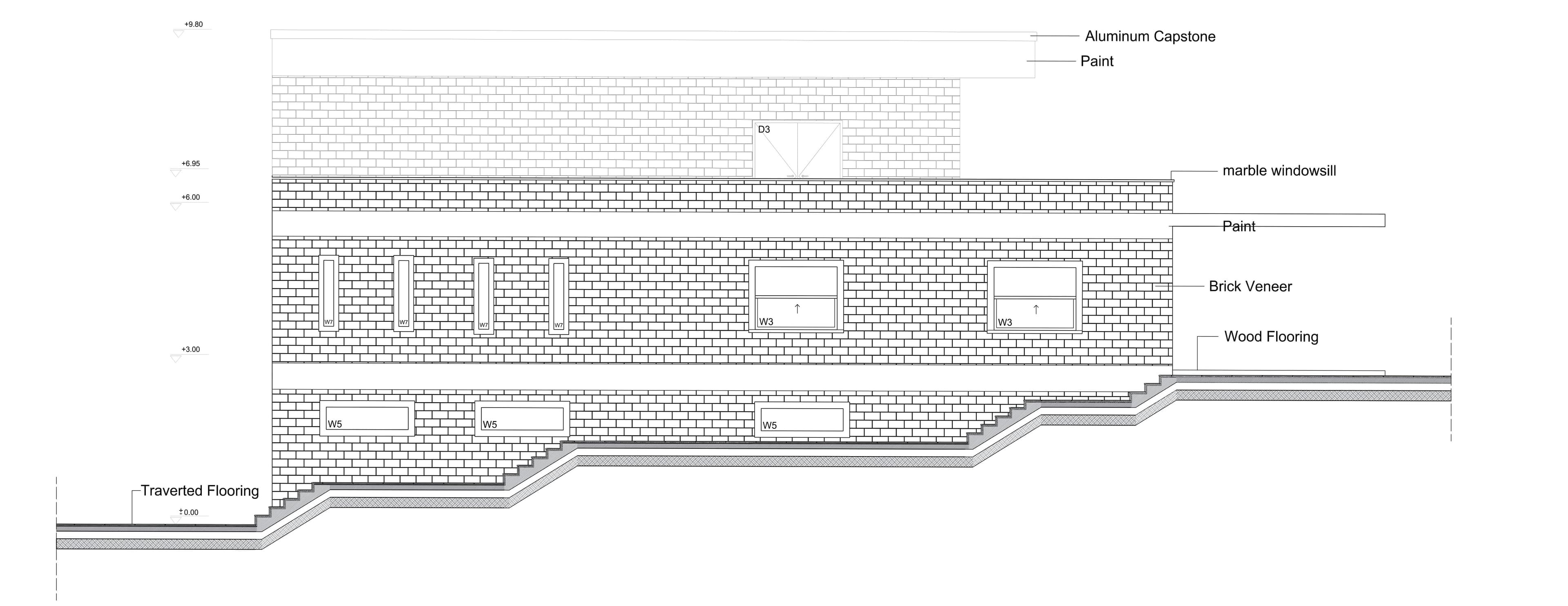
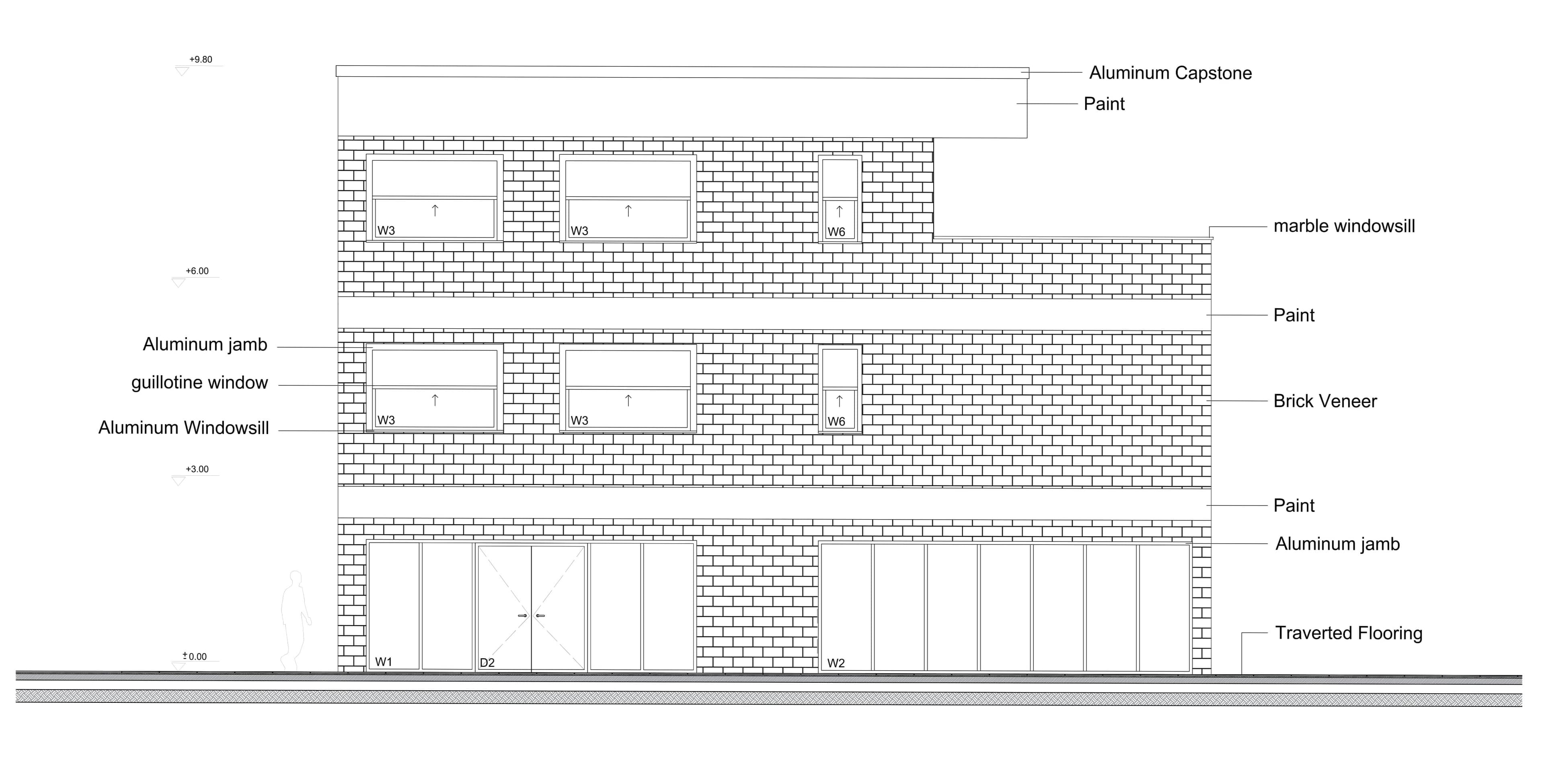
Elevations & Sections




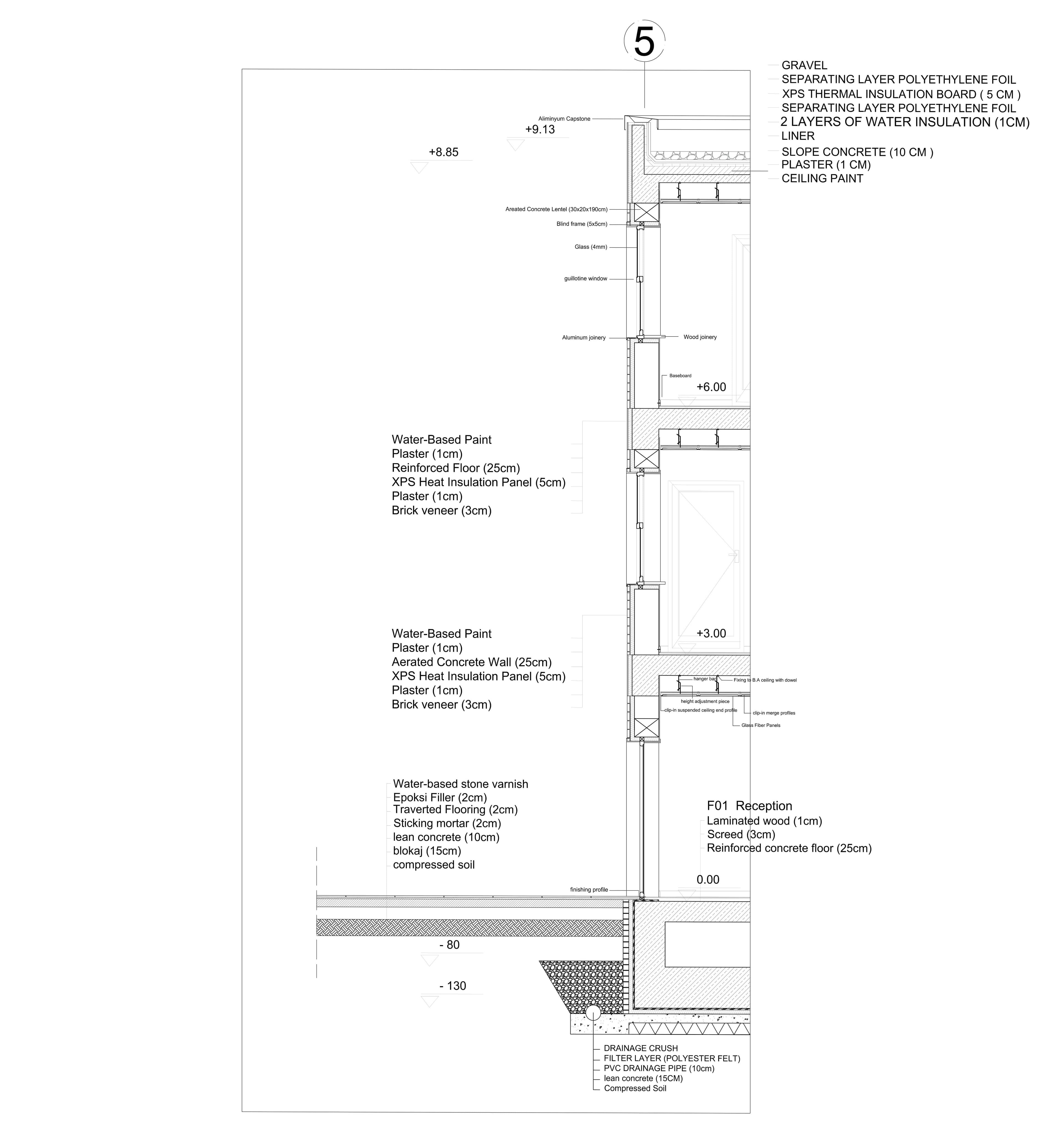
Section Details

3D Renders


Building Program
- Classrooms
- Computer Room
- Library
- Reception
- Teachers Room
- Storage
- Cafeteria
- Open-air Class


